 |
| ☆ 心ゆくまで一緒にお客様に気に入って頂ける、お部屋をお探しいたします。 |
|
 |
 |
まとめてお問い合わせできます。 |
|
|
物件番号/1125619288
賃 料
共益費 |
敷 金
礼 金 |
保証金
解約引 |
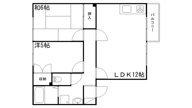
間取り
専有面積 |
築年月 |
57,000円
5,000円 |
0円
0円 |
−
− |
2LDK
51.84m2 |
平成8年3月
|
間取・外観写真・内観写真
設備・周辺情報など
沿線/駅 |
JR山陽本線/
加古川
徒歩9分
JR加古川線/
日岡
徒歩24分
山陽電鉄線/
尾上の松
徒歩45分
|
所在地 |
加古川市加古川町河原 |
現 況 |
空室 |
内 訳 |
LDK12帖、洋室5帖、和室6帖 |
入 居 |
即時 |
種 別 |
ハイツ |
階数/階建 |
2階/2階建 |
向 き |
南東 |
構 造 |
軽量鉄骨 |
契約期間 |
2年 |
駐車場 |
空有 6,000円 |
金銭備考 |
町会費:500円
保険:20,000円 2年
鍵交換代:10,000円
保証会社加入料要 駐車場代別途消費税要 鍵交換費用別途消費税要 短期解約違約金有 ペット飼育時家賃3,000円UP
|
設備・条件 |
●上水道●下水道●プロパンガス●給湯●システムキッチン●バルコニー●ガスキッチン●シャワー●室内洗濯置場●バス・トイレ別室●収納スペース●洗面所独立●駐輪場●角部屋●コンロ2口以上
●ペット相談
●2人入居可
|
周辺施設 |
氷丘南小学校1057m 氷丘中学校2184m セブン-イレブン 加古川篠原町店450m スーパー1100m 病院1000m |
大学/専学 |
− |
取引態様 |
専任媒介 |
※表示の情報と現況に差異がある場合は現況優先となります。 |
| 取扱店舗 |
Reseach House (株)TOMエステート
〒670-0916 姫路市久保町20番地
TEL:079-226-0707
※お電話でお問い合わせの場合は 【物件番号:1125619288】をお伝えください。
※携帯電話でもこちらの物件をご覧になれます。QRコードよりアクセス→→→
|  |
|
|